PRODUCT CENTER
产品中心
PHOENIX伸缩提升柱
发布日期:2020-05-26
PHOENIX -设计功能:
功能
• 吸收高达 25 kN 的高压缩和拉伸力
• 集成线性导轨
• 封闭和低维护设计
• 允许偏心负载应用
• 静止时自锁(带单级梯形螺纹)*
• 占空比为 20%/小时或 15%/10 分钟
基本设备
• 短安全螺母(用于梯形和 AGS 螺纹)
• 结束位置限制
- 电感极限开关(单级提升柱)
- 齿轮限位开关(多级提升柱)
选项
• 轴编码器
• 特殊头板或脚板
• IEC 电机的直接连接
• 球形螺钉(单级柱)
• 多启动螺钉
• 特定型号也具有特殊设计,带有安全螺母可以电化
• 特殊客户愿望
PHOENIX 安装位置和原理图
安装位置:

PHOENIX-原理图:
Lifting column, mechanically synchronized
PHOENIX-选择表
PHOENIX-流程图
性能表 SINGLE-STAGE = 梯形螺钉

PHOENIX-性能表多级 + AGS 螺钉
性能表 多级 + AGS 螺钉性能表 SINGLE-STAGE = 球形螺钉 (Ku)

PHOENIX-图

PHOENIX-图

PHOENIX-图

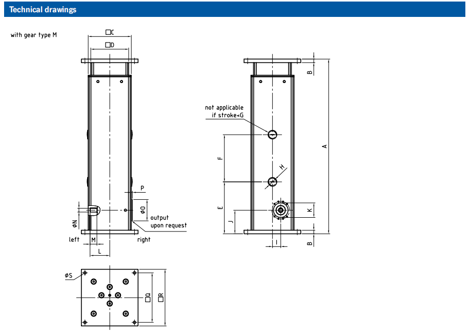
PHOENIX-技术图纸

PHOENIX-尺寸
PHOENIX-技术图纸
PHOENIX-尺寸和附件

PHOENIX-订单代码

